Strada - 53 Colton
"Elevate" the trash system

Strada

  • Client: Strada Investment Group
  • Trash Management Plan: ATM
  • Project: Mixed Use — 53 Colton - Residential (Supportive Housing)
  • Location: San Francisco, CA

Overview: 53 Colton is a permanent supportive housing development that provides 96 new homes for formerly homeless individuals. A joint venture between Community Housing Partnership and Strada Investment Group, 53 Colton is one of six new buildings that are part of the larger Brady Block development.

The Challenge: Due to the site's proximity to the BART tunnel, an excavated basement was required to offset the weight being placed on the tunnel. With a limited 8,000 square footage site and height limitations, David Baker Architects determined to place the communal areas in the basement to preserve space above grade for supportive services, offices and residences. Among the communal areas confined to the basement was the trash room.

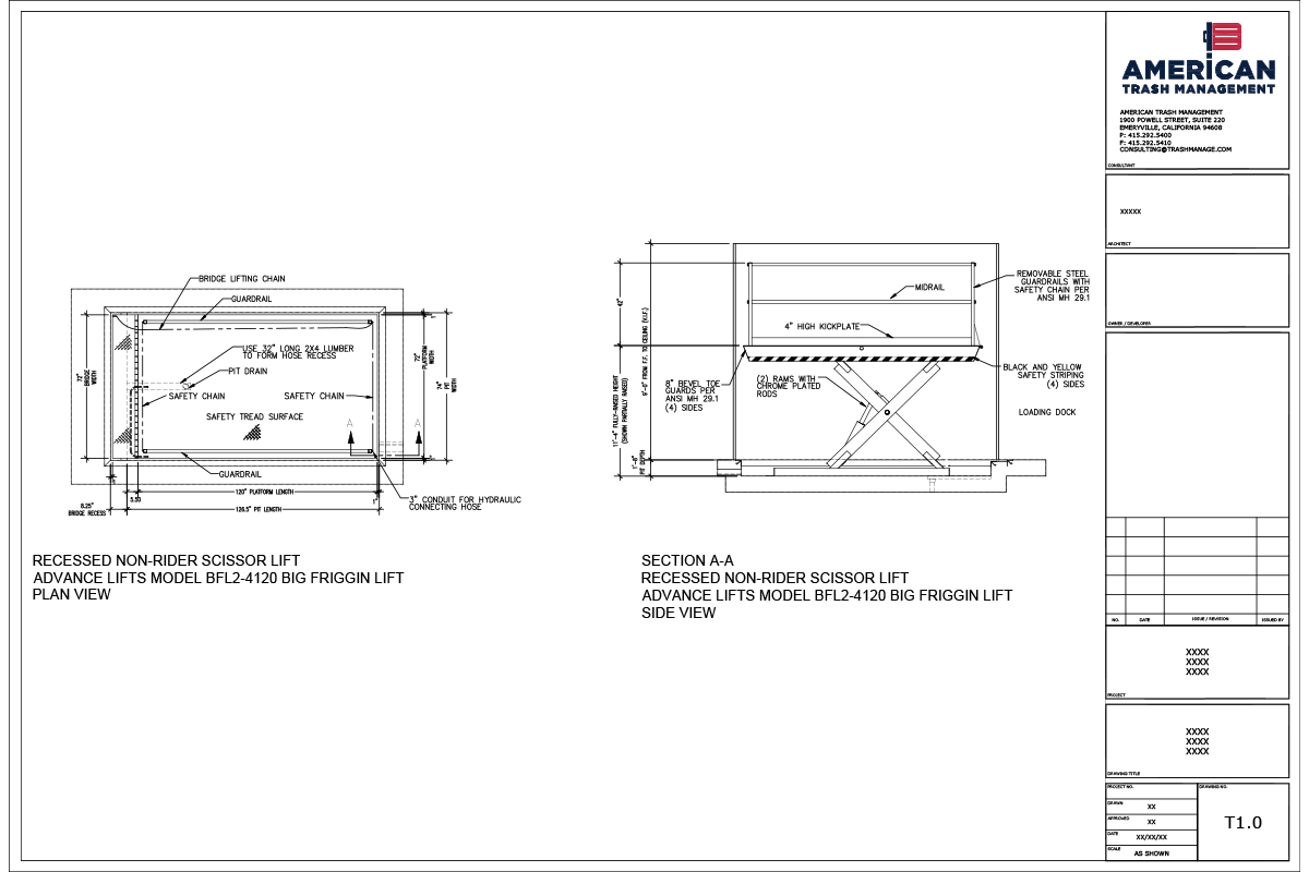
The Design Solution: When ATM's Consulting Group took on the task of designing the trash system, along with projecting service levels, specifying the chute and negotiating with the hauler, ATM had to figure out how to get the trash bins out of the basement and up on the street. The answer was a special lift, to move the containers 20 feet up to the street level.

The Construction Implementation: Solving this problem was only half the challenge ATM faced. Installing the lift system was another. ATM's Construction Group was tasked with this. Given its size and weight, just lowering it down the narrow shaft was a big undertaking. ATM harnessed its construction expertise with that of other specialists to get the lift down and operational.

The Upshot: 53 Colton is now up and running providing a positive living environment for nearly 100 formerly homeless individuals. This includes the trash system, where the hauler can empty bins regularly, thanks to the site's ability to "elevate " the trash from the basement.