Avalon Silicon Valley

Avalon Silicon Valley

  • Client: Avalon Bay
  • Trash Management Plan: ATM
  • Project: Multifamily, mixed-use
  • Location: Sunnyvale, CA

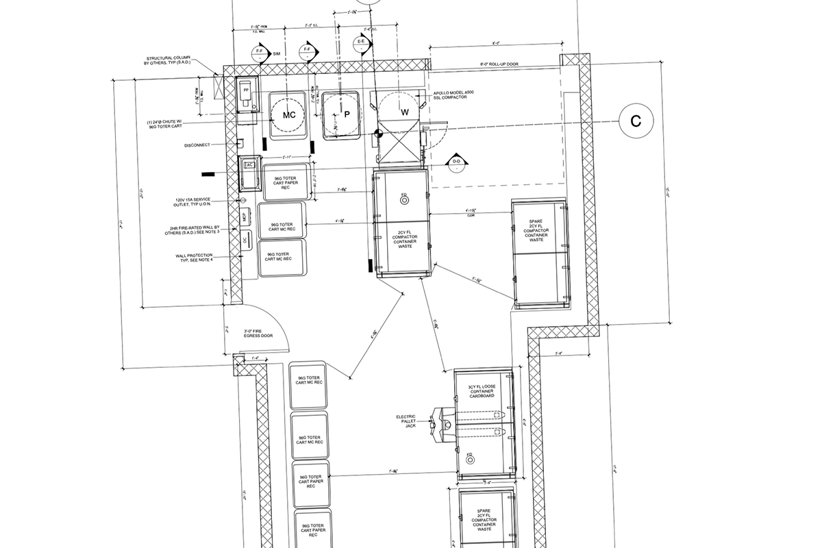
The Issues: To create a trash system that handles the 5 trash streams required by the City (waste, paper w/o cardboard, cardboard, food straps, and containers [i.e. bottles, cans, etc.]) Due to site constraints, there needed to be sufficient space for a front-load truck to pick up the waste materials from the site.

The Solution:

  1. We designed and laid out a trash discharge room that fit all 5 trash streams.
  2. We specified and positioned a trash enclosure to ensure front-load trucks can safely maneuver while servicing all the necessary containers.